
Купівля та оренда приміщень на вулиці Протасевича
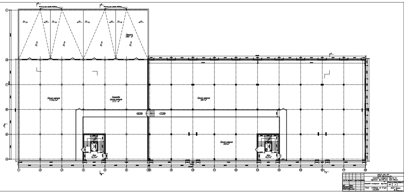
Сучасний торговий комплекс площею до 14422 м² з панорамним заскленням, власною парковкою та зручною логістикою для розвантаження автомобілів.
Читати більше
с. Великі Гаї, вул.Протасевича

0m²
Загальна площа
0m²
Вільна площа
+ 0m²
Індивідуальне будівництво
0/1
Черга будівництва
Купити М²
Від 34960 грн
Орендувати М²
Від 290 грн
Темпи будівництва
Пропонуються площі для купівлі та оренди від 200 м² до 3600 м² у новому триповерховому комплексі. Об'єкт обладнаний двома ліфтами та сучасними енергоефективними віконними системами. Висота стель у цокольному приміщенні становить 4.90 м, а на 1, 2 та 3 поверхах — 3.40 м, що забезпечує простір та комфорт для будь-якого виду комерційної діяльності.











